26 500 000 Р 327 200 $ или 280 200

Информация о коттедже

115 м2
Площадь
1
Этажность
18 cоток
Участок

Дополнительная информация

Дом продаётся вместе с участком
есть
Развернуть
Агент
+7 (988) 483-42-90
Начать чат с агентом

Дом в Адыгея, Майкопский район, Даховская ст-ца (115 м)

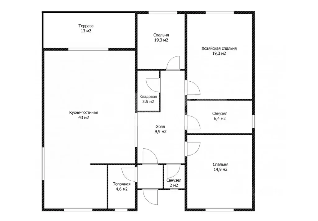
Представьте себе загородный дом с дизайнерским ремонтом, расположенный в живописных горах Адыгеи, среди великолепной природы и захватывающих дух видов. Этот дом станет идеальным местом для отдыха, проживания или инвестиций.Один дом площадью 120 квадратных метров в сочетании с удобной планировкой состоящей из:Трёх отдельных спален с видом на горные пейзажи;Просторной кухни гостиной с панорамным выходом на террасу;Двух санузлов и отдельной кладовой, топочной/постирочной позволят вам проживать и использовать дом с удобством и комфортом; С просторной террасы открывается панорамный вид на величественные горные хребты, создавая уникальную атмосферу уединения и вдохновения.Территория участка площадью 18 соток с фасадом 34 метра предоставляет множество возможностей для дополнительного благоустройства. Можно установить бассейн для отдыха и развлечений на свежем воздухе, а также построить ещё 1-2 дома или несколько небольших коттеджей, что создаст идеальные условия для ведения гостиничного бизнеса.На участке уже расположена уютная беседка, где можно наслаждаться тишиной и природной красотой, а также декоративные деревья, которые придают особое очарование этому месту.Дом оснащён автономными системами отопления, освещения и водоснабжения, что гарантирует комфорт и независимость. Уникальная система канализации очищает воду до состояния, пригодного для полива, что делает дом экологически чистым и полезным для окружающей среды.Благодаря удобному подъезду по асфальтированной дороге, у вас будет доступ к различным удобствам:Центр станицы Даховская — всего 3 минуты на машине.Этно-парк Дэгуако — 10 минут на машине.Горнолыжный курорт Лаго-Наки — 30 минут на машине, а единственная канатная дорога в республике — всего 5 минут на машине.В пяти минутах ходьбы от дома протекает горная река Дах, а чуть дальше — величественная горная река Белая. Недвижимость в этом районе активно растёт в цене благодаря развитию инфраструктуры и крупных проектов, что делает её отличной инвестицией.Приобретите свой загородный оазис в живописной горной Адыгее и наслаждайтесь комфортом, уникальной флорой и выгодным расположением Звоните сегодня, чтобы договориться о просмотре и сделать выгодную инвестицию в своё будущее Эксклюзив. Без вознаграждения со стороны покупателя Приглашаем коллег к сотрудничеству Арт.

Читать полностью

    Для того, чтобы купить 1-этажный коттедж по адресу: Даховская, позвоните по телефону +7 (988) 483-42-90. Торопитесь! Объявление №50016443355 о продаже одноэтажного коттеджа опубликовано 14 октября 2025.

    Позвонить Написать
    26 500 000 Р327 200 $ или 280 200
    Агент
    +7 (988) 483-42-90
    Начать чат с агентом
    Похожие предложения
    Дом в Адыгея, Майкопский район, Победенское с/пос, пос. Совхозный ул. ... - Фото 1
    Дом в Адыгея, Майкопский район, Победенское с/пос, пос. Совхозный ул. ... - Фото 2
    2 этажа, общая площадь 100м², участок 8 соток

    Арт.Продаётся дом 180 кв м с видом на горы 5 больших светлых комнат. Евроремонт из дорогостоящих материалов. Рядом с домом имеется гостевой домик и новый недостроенный объект(подходящий под любой бизнес).На участке имеются хоз постройки подходящие под...
    • 2 эт.
    • 100 м²
    • 8 сот.
    27 000 000 Р
    Агент
    +7 (988) Показать номер
    Посмотреть контакты
    Дом в Адыгея, Майкопский район, Даховское с/пос, пос. Гузерипль ул. ... - Фото 1
    Дом в Адыгея, Майкопский район, Даховское с/пос, пос. Гузерипль ул. ... - Фото 2
    3 этажа, общая площадь 113м², участок 7 соток

    Арт.Продается 3-этажный дом в поселке Гузерипль — в самом сердце гор, рядом с Кавказским биосферным заповедником Если вы мечтаете о жизни в живописном уголке природы, где воздух чист, а тишина наполняет каждый день — этот дом для вас Расположение:Дом...
    • 3 эт.
    • 113 м²
    • 7 сот.
    26 000 000 Р
    Агент
    +7 (988) Показать номер
    Посмотреть контакты
    Дом в Адыгея, Майкопский район, пос. Тульский ул. Буровая, 50А (192 м) - Фото 1
    Дом в Адыгея, Майкопский район, пос. Тульский ул. Буровая, 50А (192 м) - Фото 2
    2 этажа, общая площадь 192м², участок 6 соток

    Арт.К продаже предлагается домовладение общей площадью 192 м2, расположенное на земельном участке общей площадью 6.98 сот в п. Тульский.Территория двора полностью забетонирована, Одновременно может поместиться 5 автомобилей.Во дворе расположена сауна,...
    • 2 эт.
    • 192 м²
    • 6 сот.
    26 000 000 Р
    Агент
    +7 (988) Показать номер
    Посмотреть контакты
    Дом в Адыгея, Майкопский район, пос. Каменномостский пер. Обрывной ... - Фото 1
    Дом в Адыгея, Майкопский район, пос. Каменномостский пер. Обрывной ... - Фото 2
    2 этажа, общая площадь 243м², участок 6 соток

    ПОТРЯСАЮЩЕЕ ПРЕДЛОЖЕНИЕ На живописном обрыве над горной рекой Белая продам новый 2-хэтажный дом ( более 240 кв.м.) - 7 иолированных, очень светлых комнат . Просторная кухня-18 кв.м. В дом заведен газ, что еще не повсеместно в поселке, центральное водоснабжение,...
    • 2 эт.
    • 243 м²
    • 6 сот.
    27 500 000 Р
    Агент
    +7 (918) Показать номер
    Посмотреть контакты
    Дом в Адыгея, Майкопский район, пос. Каменномостский  (210 м) - Фото 1
    Дом в Адыгея, Майкопский район, пос. Каменномостский  (210 м) - Фото 2
    2 этажа, общая площадь 210м², участок 8 соток

    Продается действующий гостевой дом Золотая Липа 2018 года постройки с минимальной ежемесячной прибылью от . В выходные и праздничные дни процент доходности растёт. Итак, по порядку. Форма оплаты:Наличный расчет, обмен на квартиры в городе Майкопе+автомобиль...
    • 2 эт.
    • 210 м²
    • 8 сот.
    28 000 000 Р
    Агент
    +7 (988) Показать номер
    Посмотреть контакты

    Не нашли подходящего объявления?

    Оставьте заявку, и наши риэлторы подберут купить дом в районе Даховской

    (0)