6 520 500 Р 80 770 $ или 70 410

Информация о квартире

34 м2
Площадь
11 м2
Жилая
14 м2
Кухня
1
Комната
2
Этаж
16
Этажность
Развернуть
Агент
+7 (989) 270-38-63
Начать чат с агентом

1-комнатная квартира: Тахтамукайский район, посёлок городского типа ...

Однокомнатная квартира в жилом комплексе «Традиции сочетает в себе продуманную планировку и комфорт для повседневной жизни. Просторная кухня-столовая легко вмещает обеденную зону и современную технику, создавая уютное пространство для приготовления и приема пищи. Светлая жилая комната — идеальное место для отдыха и работы, а функциональная лоджия добавляет дополнительное пространство для хранения или создания мини-зеленого уголка. Каждый элемент планировки продуман с учетом современных потребностей, обеспечивая максимальное удобство и рациональное использование площади.

Читать полностью
    Позвонить Написать
    6 520 500 Р80 770 $ или 70 410
    Агент
    +7 (989) 270-38-63
    Начать чат с агентом
    Похожие предложения в Яблоновском
    1-к кв. Адыгея, Тахтамукайский район, Яблоновский пгт  (34.4 м) - Фото 1
    1-к кв. Адыгея, Тахтамукайский район, Яблоновский пгт  (34.4 м) - Фото 2
    1-комнатная квартира, общая площадь 34м²

    Однокомнатная квартира в жилом комплексе Традиции сочетает в себе продуманную планировку и комфорт для повседневной жизни. Просторная кухня-столовая легко вмещает обеденную зону и современную технику, создавая уютное пространство для приготовления и...
    • 34 м²
    • 1-ком
    • 8/16 эт.
    6 501 600 Р
    Агент
    +7 (932) Показать номер
    Посмотреть контакты
    2-к кв. Адыгея, Тахтамукайский район, Яблоновский пгт ул. Тургеневское ... - Фото 1
    2-к кв. Адыгея, Тахтамукайский район, Яблоновский пгт ул. Тургеневское ... - Фото 2
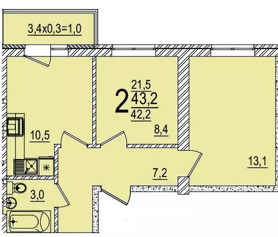
    2-комнатная квартира, общая площадь 43м²

    Продаётся 2-комнатная квартира в сданном доме (Литер 42), срок сдачи: IV-кв. 2023, общей площадью 43.2 кв.м., на 1 этаже. Экологически чистый район с артезианскими скважинами. 15 минут до центра Краснодара. В пешей доступности Ашан, Икея, ТЦ Мега . Собственное...
    • 43 м²
    • 2-ком
    • 1/5 эт.
    • монолит
    6 448 600 Р
    Агент
    +7 (932) Показать номер
    Посмотреть контакты
    1-комнатная квартира: Тахтамукайский район, посёлок городского типа ... - Фото 1
    1-комнатная квартира: Тахтамукайский район, посёлок городского типа ... - Фото 2
    1-комнатная квартира, общая площадь 34м², жилая 11м², кухня 13м²

    Однокомнатная квартира в жилом комплексе «Традиции сочетает в себе продуманную планировку и комфорт для повседневной жизни. Просторная кухня-столовая легко вмещает обеденную зону и современную технику, создавая уютное пространство для приготовления и...
    • 34 м²
    • 1-ком
    • 8/16 эт.
    6 501 600 Р
    Агент
    +7 (989) Показать номер
    Посмотреть контакты
    1-комнатная квартира: Тахтамукайский район, посёлок городского типа ... - Фото 1
    1-комнатная квартира: Тахтамукайский район, посёлок городского типа ... - Фото 2
    1-комнатная квартира, общая площадь 34м², жилая 11м², кухня 13м²

    Однокомнатная квартира в жилом комплексе «Традиции сочетает в себе продуманную планировку и комфорт для повседневной жизни. Просторная кухня-столовая легко вмещает обеденную зону и современную технику, создавая уютное пространство для приготовления и...
    • 34 м²
    • 1-ком
    • 5/16 эт.
    6 501 600 Р
    Агент
    +7 (989) Показать номер
    Посмотреть контакты
    1-комнатная квартира: Тахтамукайский район, посёлок городского типа ... - Фото 1
    1-комнатная квартира: Тахтамукайский район, посёлок городского типа ... - Фото 2
    1-комнатная квартира, общая площадь 34м², жилая 11м², кухня 13м²

    Однокомнатная квартира в жилом комплексе «Традиции сочетает в себе продуманную планировку и комфорт для повседневной жизни. Просторная кухня-столовая легко вмещает обеденную зону и современную технику, создавая уютное пространство для приготовления и...
    • 34 м²
    • 1-ком
    • 6/16 эт.
    6 501 600 Р
    Агент
    +7 (989) Показать номер
    Посмотреть контакты

    Не нашли подходящего объявления?

    Оставьте заявку, и наши риэлторы подберут квартиру в новостройке в районе Яблоновского

    (0)