6 742 400 Р 83 230 $ или 71 780

Информация о квартире

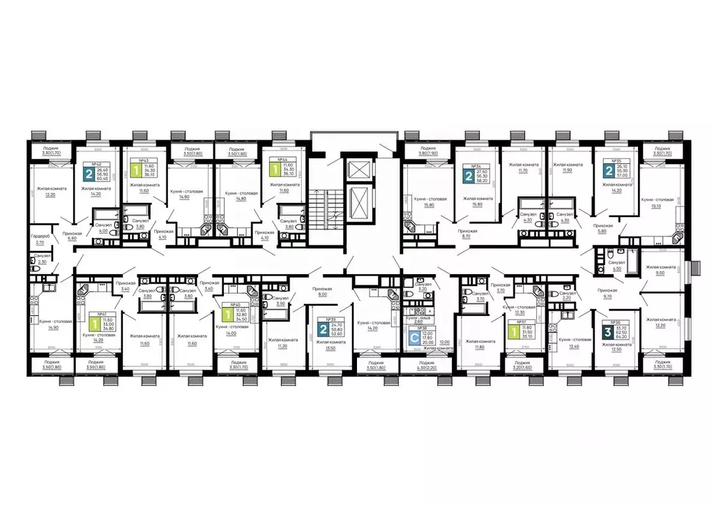
34 м2
Площадь
1
Комната
9
Этаж
16
Этажность
Развернуть
Агент
+7 (932) 506-71-58
Начать чат с агентом

1-к кв. Адыгея, Тахтамукайский район, Яблоновский пгт (34.4 м)

Однокомнатная квартира в жилом комплексе Традиции сочетает в себе продуманную планировку и комфорт для повседневной жизни. Просторная кухня-столовая легко вмещает обеденную зону и современную технику, создавая уютное пространство для приготовления и приема пищи. Светлая жилая комната — идеальное место для отдыха и работы, а функциональная лоджия добавляет дополнительное пространство для хранения или создания мини-зеленого уголка. Каждый элемент планировки продуман с учетом современных потребностей, обеспечивая максимальное удобство и рациональное использование площади.

Читать полностью
    Позвонить Написать
    6 742 400 Р83 230 $ или 71 780
    Агент
    +7 (932) 506-71-58
    Начать чат с агентом
    Похожие предложения в Яблоновском
    2-к кв. Адыгея, Тахтамукайский район, Яблоновский пгт  (50.62 м) - Фото 1
    2-к кв. Адыгея, Тахтамукайский район, Яблоновский пгт  (50.62 м) - Фото 2
    2-комнатная квартира, общая площадь 50м², кухня 10м²

    Добро пожаловать в ваш новый дом,где каждый день станет особенным Каждое утро в ЖК Вершины вас будет встречать восходящее солнце и потрясающий вид на Большой Кавказский хребет.Просторная территория длиной 400 метров идеально подходит для пробежек и...
    • 50 м²
    • 2-ком
    • 4/9 эт.
    • монолит
    6 643 875 Р
    Агент
    +7 (980) Показать номер
    Посмотреть контакты
    2-к кв. Адыгея, Тахтамукайский район, Яблоновский пгт  (50.96 м) - Фото 1
    2-к кв. Адыгея, Тахтамукайский район, Яблоновский пгт  (50.96 м) - Фото 2
    2-комнатная квартира, общая площадь 50м², кухня 11м²

    Добро пожаловать в ваш новый дом,где каждый день станет особенным Каждое утро в ЖК Вершины вас будет встречать восходящее солнце и потрясающий вид на Большой Кавказский хребет.Просторная территория длиной 400 метров идеально подходит для пробежек и...
    • 50 м²
    • 2-ком
    • 6/9 эт.
    • монолит
    6 688 500 Р
    Агент
    +7 (980) Показать номер
    Посмотреть контакты
    2-к кв. Адыгея, Тахтамукайский район, Яблоновский пгт  (50.96 м) - Фото 1
    2-к кв. Адыгея, Тахтамукайский район, Яблоновский пгт  (50.96 м) - Фото 2
    2-комнатная квартира, общая площадь 50м², кухня 11м²

    Добро пожаловать в ваш новый дом,где каждый день станет особенным Каждое утро в ЖК Вершины вас будет встречать восходящее солнце и потрясающий вид на Большой Кавказский хребет.Просторная территория длиной 400 метров идеально подходит для пробежек и...
    • 50 м²
    • 2-ком
    • 7/9 эт.
    • монолит
    6 688 500 Р
    Агент
    +7 (980) Показать номер
    Посмотреть контакты
    2-к кв. Адыгея, Тахтамукайский район, Яблоновский пгт  (47.29 м) - Фото 1
    2-к кв. Адыгея, Тахтамукайский район, Яблоновский пгт  (47.29 м) - Фото 2
    2-комнатная квартира, общая площадь 47м², кухня 12м²

    Жилой комплекс Рокада - идеальное место для комфортной и современной жизни. Расположен ЖК в центре пгт Яблоновского республики Адыгея. ЖК представляет собой кирпично-монолитные дома высотой 9 этажей со стильным дизайном. Фасады, облицованные кирпичом...
    • 47 м²
    • 2-ком
    • 4/9 эт.
    • кирпичный
    6 620 600 Р
    Агент
    +7 (958) Показать номер
    Посмотреть контакты
    1-к кв. Адыгея, Тахтамукайский район, Яблоновский пгт  (34.5 м) - Фото 1
    1-к кв. Адыгея, Тахтамукайский район, Яблоновский пгт  (34.5 м) - Фото 2
    1-комнатная квартира, общая площадь 34м²

    Однокомнатная квартира в жилом комплексе Традиции сочетает в себе продуманную планировку и комфорт для повседневной жизни. Просторная кухня-столовая легко вмещает обеденную зону и современную технику, создавая уютное пространство для приготовления и...
    • 34 м²
    • 1-ком
    • 5/16 эт.
    6 762 000 Р
    Агент
    +7 (932) Показать номер
    Посмотреть контакты

    Не нашли подходящего объявления?

    Оставьте заявку, и наши риэлторы подберут квартиру в новостройке в районе Яблоновского

    (0)