500 000 Р 6 180 $ или 5 310

Информация об помещении

1
Этаж

Состояние и оснащение

Количество этажей
2
Развернуть
Агент
+7 (918) 010-19-27
Начать чат с агентом

Помещение свободного назначения в Адыгея, Тахтамукайский район, ...

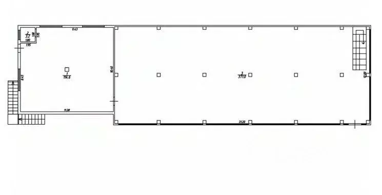
Сдаю отдельно стоящее здание свободного назначения общей площадью 990 кв.м.От Собственника. Без комиссии- Новая Адыгея , ул Северная дамба 11- Район плотной жилой застройки- Хорошая транспортная доступность , улица выходит на Тургеневское шоссе- Отдельно стоящее двухэтажное капитальное здание- Удобный подъезд к зданию с двух сторон- Рядом со зданием обширная площадка под автостоянку - Свободная планировка первого и второго этажей- Есть складское помещение- Витражное остекление- Высота потолка на 1 этаже 340 см, на 2- 280 см- Материал стен - сэндвичпанели, пеноблок- Коммуникации: электроснабжение 65 кВт , центральное водоснабжение ,септик, автономное отопление- Возможна поэтажная сдача здания От Собственника. Без комиссииПо всем вопросам можете обращаться к вашему персональному менеджеру:Александр Ястремский - консультант по коммерческой недвижимости.Большая база коммерческой недвижимости.От собственника. Без комиссии Агентство регионального развития Коммерческая недвижимость Краснодарского края.От Собственника. Без комиссииПомощь с оформлением ипотекиПодписывайтесь на наш профиль, чтобы узнавать о новых локациях первыми Добавьте это объявление в избранное - чтобы не потерять.

Читать полностью
    Позвонить Написать
    500 000 Р6 180 $ или 5 310
    Агент
    +7 (918) 010-19-27
    Начать чат с агентом
    Похожие предложения
    Помещение свободного назначения в Сахалинская область, Южно-Сахалинск ... - Фото 1
    Помещение свободного назначения в Сахалинская область, Южно-Сахалинск ... - Фото 2
    Сдаётся помещение 500м2. В площадь входят: помещения кухни 150м2, с поведённым газовым оборудованием для приготовления пищи, помещения для персонала, для хранения продукции, помещения для посетителей 300м2 с танцполом, посадочными позициями, баром, сценой...
    • 1/2 эт.
    500 000 Р
    Агент
    +7 (914) Показать номер
    Посмотреть контакты
    Помещение свободного назначения в Татарстан, Казань просп. Победы, 87А ... - Фото 1
    Помещение свободного назначения в Татарстан, Казань просп. Победы, 87А ... - Фото 2
    Сдаются 300м (с возможностью увеличения ваза) в отдельно стоящем здании с хорошей доступностью в живописном местеХарактеристики:- 1 линия- Отдельная входная группа- Своя парковка- Есть возможность разместить вывеску- Погрузка/разгрузка: Главный вход,...
    • 1/5 эт.
    510 000 Р
    Агент
    +7 (917) Показать номер
    Посмотреть контакты
    Помещение свободного назначения в Татарстан, Казань пос. Дербышки, ул. ... - Фото 1
    Помещение свободного назначения в Татарстан, Казань пос. Дербышки, ул. ... - Фото 2
    Сдам помещение свободного назначения 492,5мв густонаселённом районе на улице Мира 41- Огромный пешеходный и автомобильный трафик - Цокольный этаж, отдельный вход- Рядом находятся пункт выдачи заказов Самокат, Поминальный зал, Аптека, Пекарня, магазин...
    • -1/14 эт.
    492 500 Р
    Агент
    +7 (917) Показать номер
    Посмотреть контакты
    Помещение свободного назначения в Москва ул. Большая Ордынка, 7 (168 ... - Фото 1
    Помещение свободного назначения в Москва ул. Большая Ордынка, 7 (168 ... - Фото 2
    Сдается в аренду подвальное помещение площадью 168 кв м, зальной планировки в густонаселенном районе замоскворечье. Помещение с отдельным входом со двора, сразу перед входом в арку. Возможность размещения вывески на фасаде здания. Ранее в помещении располагалась...
    • -1/5 эт.
    500 000 Р
    Агент
    +7 (985) Показать номер
    Посмотреть контакты
    Помещение свободного назначения в Санкт-Петербург ул. Дудко, 3Б (930 ... - Фото 1
    Помещение свободного назначения в Санкт-Петербург ул. Дудко, 3Б (930 ... - Фото 2
    Арт.Интересное помещение ищет своего Арендатора Офисное помещение, в здании бывшего заводоуправления Пролетарского Завода. Кабинет директора, актовый зал, два конференц-зала, офисные пространства, зал 78 м.кв. с высотой потолка 6 метров.Представительский...
    • 3/4 эт.
    500 000 Р
    Агент
    +7 (981) Показать номер
    Посмотреть контакты

    Не нашли подходящего объявления?

    Оставьте заявку, и наши риэлторы подберут псн в районе Новой Адыгеи

    (0)