Реализация объекта недвижимости приостановлена

Информация о квартире

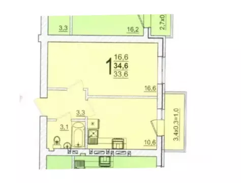
36.0 м2
Площадь
19.0 м2
Жилая
9.0 м2
Кухня
1
Комната
1
Этаж
3
Этажность

Дополнительная информация

Тип дома
кирпичный
Развернуть

1-к кв. Адыгея, Тахтамукайский район, Старобжегокайское с/пос, Новая ...

Код объекта: 1658288. Купить однокомнатную квартиру рядом с Мега Адыгея Уют, свет и удобство ЗВОНИТЕ Все наши объекты прошли трёхэтапную проверку безопасности и застрахованы от юридических рисков. О КВАРТИРЕ:Площадь: уютная 1-комнатная квартира с рациональной планировкойСостояние: заходи и живи, без дополнительных вложенийПотолки: высота 2,65 м — много воздуха и светаОснащение: гардеробная, застеклённый балкон, сплит-системаОсвобождает пространство — не нужно загромождать комнату лишней мебельюМебель и техника — по договорённостиПод балконом оборудовано закрытое место для хранения вещей, инструментов О ДОМЕ И ИНФРАСТРУКТУРЕ:Во дворе: детская и спортивная площадкаРасположение: всего 7 минут пешком до ТЦ Мега Адыгея, Лемана Про, МетроТранспорт: развязка на Меге Адыгее, удобно уехать в любую часть городаВ шаговой доступности: школа 29 (новая и большая ), Магнит, Пятёрочка, овощные и мясные магазины, аптекиАсфальтированная дорога к дому О СДЕЛКЕ:Один собственникБез обремененийДокументы готовы — чистая продажа БЕЗОПАСНОСТЬ СДЕЛКИ:Если вы определитесь с выбором недвижимости в течение 21 дня после просмотра объекта, вы получите от нас сертификат Безопасная сделка на 3 года Надёжность, проверенные документы и полная защита вашей покупки — в подарок Позвоните нам прямо сейчас, чтобы узнать больше и записаться на просмотр Теги: купить квартиру Адыгея, однокомнатная квартира рядом с Мега, квартира с гардеробной, квартира у Лемана Про, квартира рядом с Метро, квартира без обременений, квартира с балконом, уютная квартира, квартира с ремонтом, квартира рядом с транспортом

Читать полностью

    Реализация объекта недвижимости приостановлена

    Не нашли подходящего объявления?

    Оставьте заявку, и наши риэлторы подберут квартиру в районе Новой Адыгеи

    (0)