9 000 000 Р 116 500 $ или 98 580

Информация о коттедже

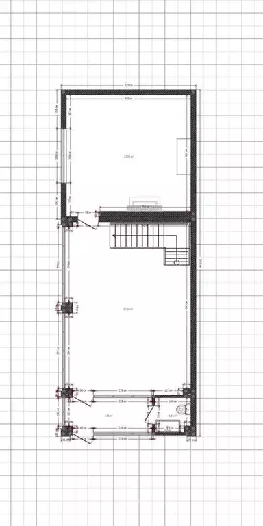
310 м2
Площадь
1
Этажность
10 cоток
Участок

Дополнительная информация

Дом продаётся вместе с участком
есть
Развернуть
Агент
+7 (965) 463-77-13
Начать чат с агентом

Дом в Майкопский район, Краснооктябрьское сельское поселение, садовое ...

Продается перспективный объект недвижимости — капитальное недостроенное здание на угловом участке площадью 10 соток с выходами на две улицы. Готов первый этаж общей площадью 310 кв. м, конструкция предусматривает возможность надстройки второго этажа. В собственности имеется утвержденный проект развития территории, включающий планировку под гостевой комплекс с бассейном. Участок расположен в живописной местности в непосредственной близости от лесного массива, гор и реки, при этом сохраняет отличную транспортную доступность до городской инфраструктуры. Объект представляет собой готовую основу для создания частной резиденции или бизнеса в сфере гостеприимства, сочетая преимущества тихого отдыха на природе с выгодной логистикой и перспективами коммерческого использования. Текущее состояние строения и наличие проектной документации позволяют новому владельцу гибко подойти к завершению строительства в соответствии с собственными задачами, будь то организация гостиницы, пансионата или частного домовладения. Это решение для инвестора, ищущего объект с четким потенциалом и минимальными административными барьерами для его реализации. Код пользователя: 198524Номер в базе:

Читать полностью

    Для того, чтобы купить 1-этажный коттедж по адресу: Виноградная улица, позвоните по телефону +7 (965) 463-77-13. Торопитесь! Объявление №50016792496 о продаже одноэтажного коттеджа опубликовано 18 февраля 2026.

    Позвонить Написать
    9 000 000 Р116 500 $ или 98 580
    Агент
    +7 (965) 463-77-13
    Начать чат с агентом
    Похожие предложения
    Дом в Адыгея, Майкопский район, Краснооктябрьское с/пос, Заречное-2 ... - Фото 1
    Дом в Адыгея, Майкопский район, Краснооктябрьское с/пос, Заречное-2 ... - Фото 2
    2 этажа, общая площадь 120м², участок 5 соток

    Дом 120 кв. м. в СНТ Заречное-2, одном из лучших в окрестностях Майкопа. Дом двухэтажный в хорошем состоянии. Первый этаж состоит из тамбура, санузла, просторной гостиной с кухней, а также большой столовой с камином.На втором этаже расположены 2 просторных...
    • 2 эт.
    • 120 м²
    • 5 сот.
    9 000 000 Р
    Агент
    +7 (988) Показать номер
    Посмотреть контакты
    Дом в Адыгея, Майкопский район, Победенское с/пос, пос. Совхозный ул. ... - Фото 1
    Дом в Адыгея, Майкопский район, Победенское с/пос, пос. Совхозный ул. ... - Фото 2
    1 этаж, общая площадь 131м², участок 10 соток

    Продается кирпичный дом в п. Совхозный Майкопского района общей площадью 131,9 кв.м., состоящий из 4-х комнат, комнаты 20/16/14/14/12,9, с/у раздельный, кухня 20 кв.м. Дом построен из блоков, обложен силикатным кирпичом.Под домом имеется большой освещаемый...
    • 1 эт.
    • 131 м²
    • 10 сот.
    9 000 000 Р
    Агент
    +7 (988) Показать номер
    Посмотреть контакты
    Дом в Адыгея, Майкопский район, Краснооктябрьское с/пос, Заречное-2 ... - Фото 1
    Дом в Адыгея, Майкопский район, Краснооктябрьское с/пос, Заречное-2 ... - Фото 2
    1 этаж, общая площадь 310м², участок 10 соток

    Продается перспективный объект недвижимости — капитальное недостроенное здание на угловом участке площадью 10 соток с выходами на две улицы. Готов первый этаж общей площадью 310 кв. м, конструкция предусматривает возможность надстройки второго этажа....
    • 1 эт.
    • 310 м²
    • 10 сот.
    9 000 000 Р
    Агент
    +7 (988) Показать номер
    Посмотреть контакты
    Дом в Адыгея, Тахтамукайский район, Козет аул Спортивная ул., 18/1 (90 ... - Фото 1
    Дом в Адыгея, Тахтамукайский район, Козет аул Спортивная ул., 18/1 (90 ... - Фото 2
    1 этаж, общая площадь 90м², участок 6 соток

    Новый дом. Предчистовая отделка, водяные теплые полы. Участок огорожен, заезд под авто забетонирован. Подключено электричество 15 киловатт три фазы, скважина, центральная вода, септик (8 кубов) подключен. Любые виды ипотеки, оформлено на ИП. Дом ждет...
    • 1 эт.
    • 90 м²
    • 6 сот.
    9 000 000 Р
    Агент
    +7 (988) Показать номер
    Посмотреть контакты
    Дом в Адыгея, Майкоп Верхняя ул. (208 м) - Фото 1
    Дом в Адыгея, Майкоп Верхняя ул. (208 м) - Фото 2
    3 этажа, общая площадь 208м², участок 10 соток

    Арт.В продаже дом 3 этажа с грамотным и комфортным зонированием:Первый этаж : просторный отапливаемый гараж с механическими воротами, потолки 2.4 метра, котельная и кладовая. Оттуда можно попасть прямо из дома по лестнице или зайти со двора.С торца дома...
    • 3 эт.
    • 208 м²
    • 10 сот.
    8 900 000 Р
    Агент
    +7 (988) Показать номер
    Посмотреть контакты

    Не нашли подходящего объявления?

    Оставьте заявку, и наши риэлторы подберут купить дом в районе Майкопского района

    (0)