17 328 000 Р 217 300 $ или 188 000

Информация об помещении

1
Этаж

Состояние и оснащение

Количество этажей
16
Развернуть
Агент
+7 (800) 550-34-89
Начать чат с агентом

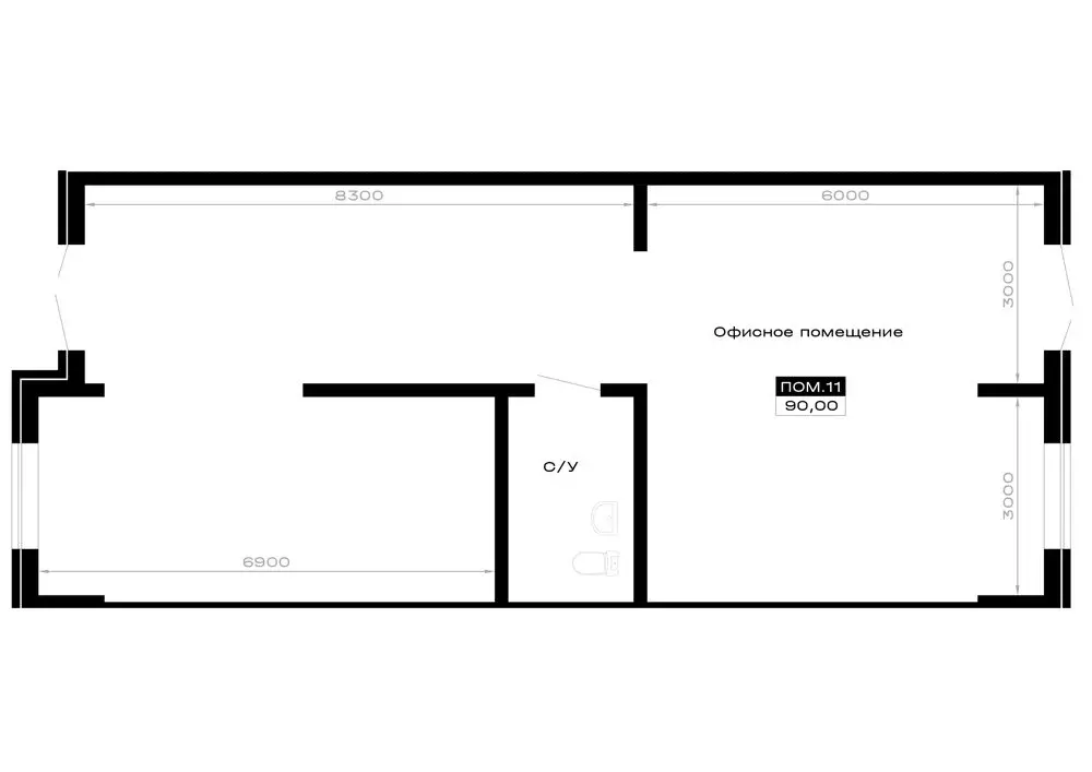
Помещение свободного назначения (86.64 м)

Предлагается к продаже помещение на 1-м этаже одного из литеров жилого комплекса «Горные высоты . Это новый проект федерального девелопера ССК в Майкопе, расположенный в экологически чистом районе в окружении живописной природы. Комплекс относится к классу «Комфорт и представляет собой современный микрорайон для комфортной жизни. Проект состоит из 3 кирпично-монолитных домов переменной этажности от 15 до 17 этажей. Общая площадь жилых домов составляет 66,6 тыс. кв. м; всего в комплексе будет 764 квартиры — от студий до трехкомнатных. Квартиры передаются собственникам с предчистовой отделкой. Здания соответствуют классу энергоэффективности В. Микрорайон «Горные Высоты окружён живописной природой и чистым горным воздухом. За два часа отсюда можно добраться до горы Фишт и плато Лаго-Наки. Неподалёку — термальные источники, водопады и горнолыжный курорт. Первые этажи в комплексе изначально проектируются под коммерческое использование и имеют отдельные входы с улицы. Территория комплекса благоустраивается с учетом потребностей семей с детьми и создания комфортной среды для жизни всех возрастов.

Читать полностью
    Позвонить Написать
    17 328 000 Р217 300 $ или 188 000
    Агент
    +7 (800) 550-34-89
    Начать чат с агентом
    Похожие предложения в Майкопе
    Помещение свободного назначения (90 м) - Фото 1
    Помещение свободного назначения (90 м) - Фото 2
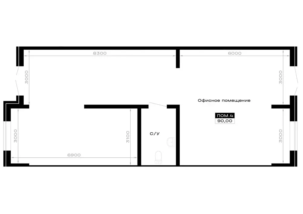
    Предлагается к продаже помещение на 1-м этаже одного из литеров жилого комплекса «Горные высоты . Это новый проект федерального девелопера ССК в Майкопе, расположенный в экологически чистом районе в окружении живописной природы. Комплекс относится к классу...
    • 1/16 эт.
    18 000 000 Р
    Агент
    +7 (800) Показать номер
    Посмотреть контакты
    Помещение свободного назначения (86.64 м) - Фото 1
    Помещение свободного назначения (86.64 м) - Фото 2
    Предлагается к продаже помещение на 1-м этаже одного из литеров жилого комплекса «Горные высоты . Это новый проект федерального девелопера ССК в Майкопе, расположенный в экологически чистом районе в окружении живописной природы. Комплекс относится к классу...
    • 1/16 эт.
    17 328 000 Р
    Агент
    +7 (800) Показать номер
    Посмотреть контакты
    Помещение свободного назначения (90 м) - Фото 1
    Помещение свободного назначения (90 м) - Фото 2
    Предлагается к продаже помещение на 1-м этаже одного из литеров жилого комплекса «Горные высоты . Это новый проект федерального девелопера ССК в Майкопе, расположенный в экологически чистом районе в окружении живописной природы. Комплекс относится к классу...
    • 1/16 эт.
    18 000 000 Р
    Агент
    +7 (800) Показать номер
    Посмотреть контакты
    Помещение свободного назначения (84.2 м) - Фото 1
    Помещение свободного назначения (84.2 м) - Фото 2
    Предлагается к продаже помещение на 1-м этаже одного из литеров жилого комплекса «Горные высоты . Это новый проект федерального девелопера ССК в Майкопе, расположенный в экологически чистом районе в окружении живописной природы. Комплекс относится к классу...
    • 1/16 эт.
    16 840 000 Р
    Агент
    +7 (800) Показать номер
    Посмотреть контакты
    Помещение свободного назначения (90 м) - Фото 1
    Помещение свободного назначения (90 м) - Фото 2
    Предлагается к продаже помещение на 1-м этаже одного из литеров жилого комплекса «Горные высоты . Это новый проект федерального девелопера ССК в Майкопе, расположенный в экологически чистом районе в окружении живописной природы. Комплекс относится к классу...
    • 1/16 эт.
    18 000 000 Р
    Агент
    +7 (800) Показать номер
    Посмотреть контакты

    Не нашли подходящего объявления?

    Оставьте заявку, и наши риэлторы подберут псн в районе Майкопа

    (0)