5 700 000 Р 76 720 $ или 64 370

Информация о квартире

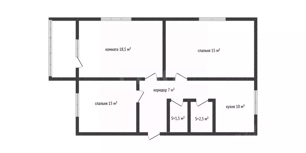
54 м2
Площадь
29 м2
Жилая
9 м2
Кухня
2
Комнаты
1
Этаж
9
Этажность

Дополнительная информация

Тип дома
панельный
Развернуть
Агент
+7 (988) 483-41-26
Начать чат с агентом

2-к кв. Адыгея, Майкоп Школьная ул., 191 (54.5 м)

Арт.Продаётся 2-комнатная квартира на 1 этаже в районе Нефтеразведки. Идеальная площадка для вашего бизнеса Это помещение — готовое коммерческое решение с отдельным входом в самом сердце оживленного района. Высокая проходимость и удобная логистика обеспечат вашему делу постоянный поток клиентов.Главные преимущества:Удачное расположение: Рядом поликлиника и клиника Мой доктор , что создаёт идеальные условия для бизнеса в сфере здоровья, красоты или аптечного дела.Проверенная бизнес-среда: Квартира находится в окружении успешно работающих коммерческих помещений — магазинов, кафе, офисов, салонов красоты и ателье. Вы встраиваетесь в готовый деловой кластер с целевой аудиторией.Гибкое пространство: Просторные 54.5 кв. м с удобной планировкой позволяют легко разделить площадь под торговую зону, офис, приемную или производственный участок.Легализация бизнеса: В данном районе уже есть положительный опыт перевода квартир в нежилой фонд, что упрощает процедуру официального оформления вашей деятельности.Это уникальная возможность приобрести не просто жилье, а перспективный актив с высоким потенциалом доходности. Отличный вариант для запуска своего дела или выгодных инвестиций.Звоните, чтобы договориться о просмотре и лично оценить преимущества локации

Читать полностью

    Для того, чтобы купить двухкомнатную квартиру по адресу: Майкоп, ул. Школьная, 191, позвоните по телефону +7 (988) 483-41-26. Торопитесь! Объявление №30094195820 о продаже двухкомнатной квартиры опубликовано 05 мая 2026.

    Позвонить Написать
    5 700 000 Р76 720 $ или 64 370
    Агент
    +7 (988) 483-41-26
    Начать чат с агентом
    Похожие предложения
    2-к кв. Адыгея, Майкоп ул. Жуковского, 5 (39.3 м) - Фото 1
    2-к кв. Адыгея, Майкоп ул. Жуковского, 5 (39.3 м) - Фото 2
    2-комнатная квартира, общая площадь 39м², жилая 20м², кухня 10м²

    Продается уютная двухкомнатная квартира площадью 39,3 м, расположенная на 5 этаже пятиэтажного дома в самом сердце Майкопа Эта квартира — идеальный вариант для комфортной жизни или выгодного инвестирования. В квартире выполнен свежий ремонт, что позволит...
    • 39 м²
    • 2-ком
    • 5/5 эт.
    5 800 000 Р
    Агент
    +7 (918) Показать номер
    Посмотреть контакты
    3-к кв. Адыгея, Майкоп ул. Чкалова (68.2 м) - Фото 1
    3-к кв. Адыгея, Майкоп ул. Чкалова (68.2 м) - Фото 2
    3-комнатная квартира, общая площадь 68м², жилая 38м², кухня 10м²

    Продается просторная и уютная 3-комнатная квартира площадью 68,2 кв.м в районе Черемушки.Квартира без каких-либо обременений, с полным пакетом документов, готовых к продаже.В квартире есть:-3 изолированные комнаты-Большая кухня кухня площадью 10 кв.м...
    • 68 м²
    • 3-ком
    • 5/5 эт.
    • кирпичный
    5 800 000 Р
    Агент
    +7 (988) Показать номер
    Посмотреть контакты
    2-к кв. Адыгея, Майкоп ул. Хакурате, 236 (50.2 м) - Фото 1
    2-к кв. Адыгея, Майкоп ул. Хакурате, 236 (50.2 м) - Фото 2
    2-комнатная квартира, общая площадь 50м², жилая 30м², кухня 7м²

    ДВухкомнатная квартира в панельном доме расположена в центре города, в шаговой доступности от ключевых городских объектов. Несмотря на оживленную локацию, двор дома остается тихим и озелененным, создавая комфортную среду для проживания. Дом отличается...
    • 50 м²
    • 2-ком
    • 5/5 эт.
    • кирпичный
    5 700 000 Р
    Агент
    +7 (988) Показать номер
    Посмотреть контакты
    2-к кв. Адыгея, Майкоп Депутатская ул., 4 (51.7 м) - Фото 1
    2-к кв. Адыгея, Майкоп Депутатская ул., 4 (51.7 м) - Фото 2
    2-комнатная квартира, общая площадь 51м², жилая 34м², кухня 8м²

    Арт.Продаётся просторная и светлая 2-комнатная квартира Район: Черёмушки один из самых популярных районов столицы, славящийся своей спокойной атмосферой, хорошо развитой инфраструктурой и удобством расположения. Здесь легко добраться до центра города,...
    • 51 м²
    • 2-ком
    • 3/5 эт.
    • панельный
    5 800 000 Р
    Агент
    +7 (988) Показать номер
    Посмотреть контакты
    2-к кв. Адыгея, Майкоп ул. Карла Маркса, 2 (47.9 м) - Фото 1
    2-к кв. Адыгея, Майкоп ул. Карла Маркса, 2 (47.9 м) - Фото 2
    2-комнатная квартира, общая площадь 47м², жилая 34м², кухня 7м²

    Арт.В продаже двухкомнатная квартира в лучшем районе города Майкопа, Маяк.Отличная квартира, общей площадью 47.9 квадратных метра ___________________________________Находится на 5 этаже пятиэтажного дома.Дом теплый, кирпичный качественной постройки Кухня...
    • 47 м²
    • 2-ком
    • 5/5 эт.
    • кирпичный
    5 700 000 Р
    Агент
    +7 (988) Показать номер
    Посмотреть контакты

    Не нашли подходящего объявления?

    Оставьте заявку, и наши риэлторы подберут квартиру в районе Майкопа

    (0)