Россия, Республика Адыгея, Майкоп, 2-я Дубзаводская улица, 4
5 300 000 Р 65 840 $ или 56 750

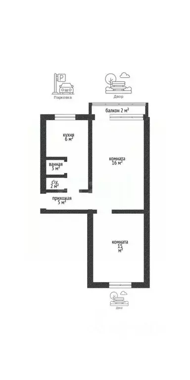
Информация о квартире

67 м2
Площадь
44 м2
Жилая
7 м2
Кухня
3
Комнаты
5
Этаж
5
Этажность
Развернуть
Агент
+7 (989) 142-84-14
Начать чат с агентом

3-комнатная квартира: Майкоп, 2-я Дубзаводская улица, 4 (67.9 м)

Арт.Продается просторная 3-комнатная квартира площадью 67,9 кв.м Площадь 67,9 кв.м — просторная квартира для всей семьи. 5 этаж из 5 — никто не шумит сверху, тишина и уединение. 3 изолированные комнаты — у каждого личное пространство. Кухня 9 кв.м — удобно готовить и собирать всю семью. Две лоджии — дополнительная зона для отдыха или хранения. Дом в глубине двора — без шума, безопасно для детей. Вся инфраструктура в шаговой доступности — магазины, школы и детские сады рядом, экономия времени ежедневно. Идеальный вариант для комфортной и спокойной жизни Звоните прямо сейчас и записывайтесь на просмотр Не упустите выгодное предложение

Читать полностью

    Для того, чтобы купить трехкомнатную квартиру по адресу: Майкоп, 2-я Дубзаводская улица, 4, позвоните по телефону +7 (989) 142-84-14. Торопитесь! Объявление №30091483165 о продаже трехкомнатной квартиры опубликовано Вчера.

    Позвонить Написать
    5 300 000 Р65 840 $ или 56 750
    Агент
    +7 (989) 142-84-14
    Начать чат с агентом
    Похожие предложения
    1-к кв. Адыгея, Майкоп ул. К.А. Васильева, 4 (40.33 м) - Фото 1
    1-к кв. Адыгея, Майкоп ул. К.А. Васильева, 4 (40.33 м) - Фото 2
    1-комнатная квартира, общая площадь 40м², жилая 14м², кухня 17м²

    Арт.Продается уютная комфортная 1 комнатная квартира в шикарном месте В новом районе города Эко квартал Яблоневый Современная 1-комнатная квартира площадью 40,33 кв.м с улучшенной кухней-гостиной, в новостройке.Качественная предчистовая отделка, атермальное...
    • 40 м²
    • 1-ком
    • 2/9 эт.
    5 400 000 Р
    Агент
    +7 (988) Показать номер
    Посмотреть контакты
    2-к кв. Адыгея, Майкоп ул. Юннатов, 4 (51.8 м) - Фото 1
    2-к кв. Адыгея, Майкоп ул. Юннатов, 4 (51.8 м) - Фото 2
    2-комнатная квартира, общая площадь 51м², жилая 30м², кухня 6м²

    Продается 2х-комнатная квартира в очень уютном и удобном районе Черемушек на третьем этаже.Общая площадь квартиры 51,8 кв.м. В квартире 2 комнаты одна из них с балконом, кухня и раздельный санузел. Окна квартиры выходят на разные стороны дома. Удобный...
    • 51 м²
    • 2-ком
    • 3/5 эт.
    • монолит
    5 200 000 Р
    Агент
    +7 (988) Показать номер
    Посмотреть контакты
    2-к кв. Адыгея, Майкоп 7-й пер., 14 (50.6 м) - Фото 1
    2-к кв. Адыгея, Майкоп 7-й пер., 14 (50.6 м) - Фото 2
    2-комнатная квартира, общая площадь 50м², жилая 20м², кухня 10м²

    Арт.Продается просторная двухкомнатная квартира площадью 50 квадратных метров в новом восьми-этажном доме Расположенная на шестом этаже, квартира предлагает прекрасные виды и отличную возможность создать интерьер своей мечты.Это идеальный вариант для...
    • 50 м²
    • 2-ком
    • 6/8 эт.
    • кирпичный
    5 350 000 Р
    Агент
    +7 (988) Показать номер
    Посмотреть контакты
    2-к кв. Адыгея, Майкоп ул. 12 Марта, 130К2 (50.7 м) - Фото 1
    2-к кв. Адыгея, Майкоп ул. 12 Марта, 130К2 (50.7 м) - Фото 2
    2-комнатная квартира, общая площадь 50м², кухня 7м²

    Продаётся великолепная квартира в одном из самых удобных и комфортных районов города — Черёмушки Это идеальное место для жизни, где всё необходимое находится в шаговой доступности: рынок, поликлиника, детский сад, аптеки и магазины. Удобные транспортные...
    • 50 м²
    • 2-ком
    • 4/5 эт.
    • кирпичный
    5 400 000 Р
    Агент
    +7 (988) Показать номер
    Посмотреть контакты
    2-к кв. Адыгея, Майкоп Пролетарская ул., 449 (47.8 м) - Фото 1
    2-к кв. Адыгея, Майкоп Пролетарская ул., 449 (47.8 м) - Фото 2
    2-комнатная квартира, общая площадь 47м², жилая 26м², кухня 7м²

    Арт.Продаётся уютная двухкомнатная квартира площадью 47,7 м в живописном районе Нефтеразведка города Майкоп Основные характеристики: Квартира расположена на седьмом этаже двенадцатиэтажного кирпичного дома - великолепный вид на город. Просторная и светлая,...
    • 47 м²
    • 2-ком
    • 7/12 эт.
    • кирпичный
    5 200 000 Р
    Агент
    +7 (918) Показать номер
    Посмотреть контакты

    Не нашли подходящего объявления?

    Оставьте заявку, и наши риэлторы подберут квартиру в районе Майкопа

    (0)