Реализация объекта недвижимости приостановлена

Информация о квартире

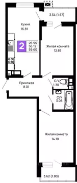
57.0 м2
Площадь
2
Комнаты
12
Этаж
12
Этажность

Дополнительная информация

Тип дома
кирпичный
Развернуть

2-к кв. Адыгея, Майкоп (57.13 м)

Двухкомнатная квартира сочетает практичность и комфорт: просторная кухня легко вмещает обеденную зону, а две изолированные комнаты позволяют гибко организовать пространство — под спальню и гостиную, детскую и кабинет или другие зоны по вашему усмотрению. Витражное остекление, лоджия и балкон не только расширяют полезную площадь, но и создают ощущение легкости, воздуха и гармоничной связи с окружающей средой. В жилом комплексе Дружба проектом предусмотрена увеличенная площадь остекления — особенность, которая наполняет каждую квартиру обилием естественного света и дарит прекрасные виды на окрестности.

Читать полностью

    Реализация объекта недвижимости приостановлена

    Не нашли подходящего объявления?

    Оставьте заявку, и наши риэлторы подберут квартиру в новостройке в районе Майкопа

    (0)