7 200 000 Р 89 010 $ или 77 100

Информация о коттедже

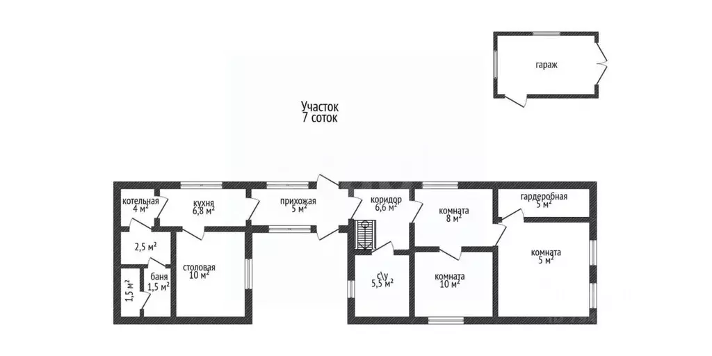
71 м2
Площадь
1
Этажность
6 cоток
Участок

Дополнительная информация

Дом продаётся вместе с участком
есть
Развернуть
Агент
+7 (988) 483-41-02
Начать чат с агентом

Дом в Адыгея, Майкоп Прямая ул., 90 (71 м)

Арт.В продаже перспективный земельный участок в центре города. На участке расположен жилой дом площадью 71 кв.м, пригодный для проживания — все удобства уже есть. Отопление газовое. В доме три комнаты, две из которых изолированы. Есть возможность строительства нового дома без сноса существующего. Коммуникации полностью подключены и находятся на участке. Развитая инфраструктура обеспечит комфортную жизнь. Этот дом с участком отлично подойдёт тем, кто хочет одновременно жить и строиться в удобном городском районе

Читать полностью

    Для того, чтобы купить 1-этажный коттедж по адресу: Майкоп, ул. Прямая, 90, позвоните по телефону +7 (988) 483-41-02. Торопитесь! Объявление №50016323758 о продаже одноэтажного коттеджа опубликовано 31 октября 2025.

    Позвонить Написать
    7 200 000 Р89 010 $ или 77 100
    Агент
    +7 (988) 483-41-02
    Начать чат с агентом
    Похожие предложения
    Дом в Адыгея, Майкоп ул. Патриса Лумумбы (64 м) - Фото 1
    Дом в Адыгея, Майкоп ул. Патриса Лумумбы (64 м) - Фото 2
    1 этаж, общая площадь 64м², участок 5 соток

    Арт.Продается дом в тихом, уютном районе города Дом общей площадью 64,3 кв м, состоит из 4 жилых комнат, кухни и совмещенного санузла.Дом кирпичный, обшит сайдингом, крыша шифер, пластиковые окна, установлены ролл-ставни.На участке площадью 5,3 сотки...
    • 1 эт.
    • 64 м²
    • 5 сот.
    7 300 000 Р
    Агент
    +7 (988) Показать номер
    Посмотреть контакты
    Дом в Адыгея, Майкоп Заводская ул., 222 (58 м) - Фото 1
    Дом в Адыгея, Майкоп Заводская ул., 222 (58 м) - Фото 2
    1 этаж, общая площадь 58м², участок 3 сотки

    Арт.Продаётся жилой дом 58,1 м2., в городе Майкоп.В доме 4-комнаты и кухня.Окна все пластиковые.Крыша полностью новая.Дом выполнен из самана и обложен кирпичом.Отопление: газовый котел.Водоснабжение центральное.Сан узел совмещенный.Участок 3,5 сотки,...
    • 1 эт.
    • 58 м²
    • 3 сот.
    7 300 000 Р
    Агент
    +7 (988) Показать номер
    Посмотреть контакты
    Дом в Адыгея, Майкоп Линейная ул. (86 м) - Фото 1
    Дом в Адыгея, Майкоп Линейная ул. (86 м) - Фото 2
    2 этажа, общая площадь 86м², участок 7 соток

    Продаётся уютный загородный дом в живописном районе ВосходПредлагаем вашему вниманию просторный жилой дом площадью 86,3 квадратных метров, расположенный на ухоженном участке размером 7 соток. Идеальное сочетание комфорта и близости к природе Дом включает...
    • 2 эт.
    • 86 м²
    • 7 сот.
    7 200 000 Р
    Агент
    +7 (988) Показать номер
    Посмотреть контакты
    Дом в Адыгея, Майкоп ул. Ашхамафа (74 м) - Фото 1
    Дом в Адыгея, Майкоп ул. Ашхамафа (74 м) - Фото 2
    1 этаж, общая площадь 74м², участок 7 соток

    Арт.Продается новый дом 74,9 м2., в прекрасном и живописном месте. Дом выполнен из газоблока по всем стандартам. Три комнаты, санузел совмещен, кухня-гостиная. В данный момент дом сдан в эксплуатацию.Участок межёван. Из отопления - теплые полы и батареи.Проводка...
    • 1 эт.
    • 74 м²
    • 7 сот.
    7 200 000 Р
    Агент
    +7 (988) Показать номер
    Посмотреть контакты
    2 этажа, общая площадь 100м², участок 16 соток

    Продаём добротный двухэтажный кирпичный дом в станице Ханской площадью 100,7 кв.м. (второй этаж - мансардный). Построен из блока, облицован итальянским кирпичем, крыша профнастил, каменный декор цоколя, окна все МПО, красивый забор из металлической резной...
    • 2 эт.
    • 100 м²
    • 16 сот.
    7 200 000 Р
    Агент
    +7 (988) Показать номер
    Посмотреть контакты

    Не нашли подходящего объявления?

    Оставьте заявку, и наши риэлторы подберут купить дом в районе Майкопа

    (0)