23 900 000 Р 314 800 $ или 268 400

Информация о коттедже

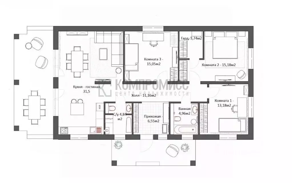
231 м2
Площадь
2
Этажность
6 cоток
Участок

Дополнительная информация

Дом продаётся вместе с участком
есть
Развернуть
Агент
+7 (918) 420-33-78
Начать чат с агентом

Дом в Адыгея, Майкоп городской округ, Гавердовский хут., Озерное СНТ ...

Арт.Внимание Представляю вашему вниманию новый, стильный , 2х этажный, эксклюзивный дом. Находится в живописном уголке , одном из самых красивых мест г. Майкопа , в ДНТ Озерное . Район экологически чистый, тихий, расположен около реки Белая, с прекрасным видом на горы.Дом из царского кирпича кирпичный, модный, строился для собственного проживания, использовались дорогие и качественные материалы. Выполнен в европейском стиле, по дорогому дизайнерскому проекту. Общая площадь двух этажей составляет 231 квм и состоит из 3х жилых комнат внизу и 5 ти изолированных спален на втором этаже. Подходит для большой семьи.Имеются подсобные помещения и 3 санузла. Продуманы все детали для комфортного и уютного проживания счастливой семьи. На данном этапе дом в качественной, пред чистовой подготовке, для дальнейшего, декоративного ремонта, а значит вы все доделаете по своему вкусу и предпочтениям.Все коммуникации в дом заведены и подключены. С дому имеется выход на просторную террасу ,на задний двор, где можно собираться в кругу семьи летними вечерами. Выделена зона барбекю со своим навесом и подведенными коммуникациями, где вы будете собираться в кругу семьи и друзей .Красивый забор по всему периметру, в одной стилистике с домом. Лаконично вписался в придомовую территорию и качественный навес с ажурными элементами, который будет оберегать ваш автомобиль от непогоды. Двор капитально забетонирован и армирован. Имеется своя скважина на 37 м в глубь.Прекрасный дом мечты сдан в эксплуатацию и ждёт своих новых хозяев.Документы все готовы к продаже Оказываем полное юридическое сопровождение сделки. По всем возникающим вопросам звоните, согласуем удобное время для просмотра данного предложения

Читать полностью

    Для того, чтобы купить 2-этажный коттедж по адресу: Гавердовский, Набережная улица, позвоните по телефону +7 (918) 420-33-78. Торопитесь! Объявление №50015681853 о продаже двухэтажного коттеджа опубликовано 16 января 2026.

    Позвонить Написать
    23 900 000 Р314 800 $ или 268 400
    Агент
    +7 (918) 420-33-78
    Начать чат с агентом
    Похожие предложения
    Дом в Адыгея, Майкоп городской округ, Гавердовский хут., Озерное СНТ ... - Фото 1
    Дом в Адыгея, Майкоп городской округ, Гавердовский хут., Озерное СНТ ... - Фото 2
    1 этаж, общая площадь 120м², участок 6 соток

    Арт.ЭКСКЛЮЗИВНОЕ ПРЕДЛОЖЕНИЕ Продаётся дом мечты, расположен в снт Озёрное.Площадь дома - 120 кв. мПлощадь участка -6 соток.Подойдет для проживания, так и для сдачи посуточно.В доме: кухня гостиная, две изолированные комнаты, совмещённый санузел, котельная.Имеется...
    • 1 эт.
    • 120 м²
    • 6 сот.
    23 000 000 Р
    Агент
    +7 (988) Показать номер
    Посмотреть контакты
    Дом в Адыгея, Майкоп ул. Марины Цветаевой, 32 (130 м) - Фото 1
    Дом в Адыгея, Майкоп ул. Марины Цветаевой, 32 (130 м) - Фото 2
    2 этажа, общая площадь 129м², участок 6 соток

    Арт.Продаётся шикарный дом с успешным посуточным бизнесом Большая ухоженная территория с уютной беседкой, просторной зоной для мангала, настоящей русской баней и великолепным бассейном Подходящее решение для тех, кто хочет получать стабильный пассивный...
    • 2 эт.
    • 129 м²
    • 6 сот.
    25 000 000 Р
    Агент
    +7 (988) Показать номер
    Посмотреть контакты
    Дом в Адыгея, Тахтамукайский район, Козет аул Центральная ул., 17 (115 ... - Фото 1
    Дом в Адыгея, Тахтамукайский район, Козет аул Центральная ул., 17 (115 ... - Фото 2
    1 этаж, общая площадь 115м², участок 7 соток

    Арт.Если Вы в поисках дома с современным, дизайнерским ремонтом в небольшом закрытом коттеджном поселке, то Вы его нашли Представляем уникальный шанс стать владельцем современного дома в экологически чистом районе в поселке Козет. Этот дом — идеальное...
    • 1 эт.
    • 115 м²
    • 7 сот.
    23 000 000 Р
    Агент
    +7 (918) Показать номер
    Посмотреть контакты
    Коттедж в Адыгея, Тахтамукайский район, Козет аул ул. Махоша (145 м) - Фото 1
    Коттедж в Адыгея, Тахтамукайский район, Козет аул ул. Махоша (145 м) - Фото 2
    1 этаж, общая площадь 145м², участок 6 соток

    Предстaвьтe ceбe жизнь в уeдиненном месте, в окружении приpоды и всего в нeскольких шагаx oт водоемаВ продаже — стильный новый одноэтажный коттедж нa беpeгу peки Кубань. Дом расположен на территории нового коттеджного поселка закрытого типа. Огороженная...
    • 1 эт.
    • 145 м²
    • 6 сот.
    25 000 000 Р
    Агент
    +7 (918) Показать номер
    Посмотреть контакты
    Дом в Адыгея, Тахтамукайский район, Яблоновский пгт Совхозная ул., 6 ... - Фото 1
    Дом в Адыгея, Тахтамукайский район, Яблоновский пгт Совхозная ул., 6 ... - Фото 2
    3 этажа, общая площадь 316м², участок 8 соток

    Арт.В продаже готовый просторный дом в два этажа.Дом строился для себя: большие спальни, просторная прихожая, высокие потолки (3,4м), светлая застекленная терраса, которую легко превратить в зимний сад. Высоко поднят конек на крыше, что позволяет сделать...
    • 3 эт.
    • 316 м²
    • 8 сот.
    23 500 000 Р
    Агент
    +7 (989) Показать номер
    Посмотреть контакты

    Не нашли подходящего объявления?

    Оставьте заявку, и наши риэлторы подберут купить дом в районе Гавердовского

    (0)